Projet
DIA 15
Nom
Diamant
Localisation
Schaerbeek
Année
2019
Type
Transformation d’une maison de repos en 41 appartements
Utilisation
Professionnel
Surface
1960 m²
Description
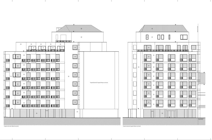
Situé à l’angle du carrefour Diamant, à l’entrée de Bruxelles depuis l’autoroute, cet immeuble en rez +8 a fait l’objet d’une reconversion complète.
Ancienne maison de repos désertée puis squattée, il retrouve aujourd’hui une nouvelle vie. Le projet a transformé le rez-de-chaussée en commerces et équipements collectifs, tandis que les étages accueillent désormais 41 logements de qualité, entièrement décorés par Trilogie. Les volumes existants ont été intégralement conservés, et l’enveloppe du bâtiment restaurée dans le respect des matériaux d’origine, en étroite concertation avec l’administration communale
Description
Situé à l’angle du carrefour Diamant, à l’entrée de Bruxelles depuis l’autoroute, cet immeuble en rez +8 a fait l’objet d’une reconversion complète.
Ancienne maison de repos désertée puis squattée, il retrouve aujourd’hui une nouvelle vie. Le projet a transformé le rez-de-chaussée en commerces et équipements collectifs, tandis que les étages accueillent désormais 41 logements de qualité, entièrement décorés par Trilogie. Les volumes existants ont été intégralement conservés, et l’enveloppe du bâtiment restaurée dans le respect des matériaux d’origine, en étroite concertation avec l’administration communale
Description
Situé à l’angle du carrefour Diamant, à l’entrée de Bruxelles depuis l’autoroute, cet immeuble en rez +8 a fait l’objet d’une reconversion complète.
Ancienne maison de repos désertée puis squattée, il retrouve aujourd’hui une nouvelle vie. Le projet a transformé le rez-de-chaussée en commerces et équipements collectifs, tandis que les étages accueillent désormais 41 logements de qualité, entièrement décorés par Trilogie. Les volumes existants ont été intégralement conservés, et l’enveloppe du bâtiment restaurée dans le respect des matériaux d’origine, en étroite concertation avec l’administration communale
Diamant
Façade avant

Elévation

Detail façade

Intérieur

Intérieur
